Negozio con 2 vetrine a Palombina nuova
Ancona - Palombina nuova
80.000 €
- Cod.: VC1016
- Contratto: Vendita
- Uso: Commerciale
- Superficie: 99 mq
- Disponibilità: immediata
- Arredamento: non arredato
- Piano: terra
- Vani: 3
- Spese condominiali: 100 €/anno
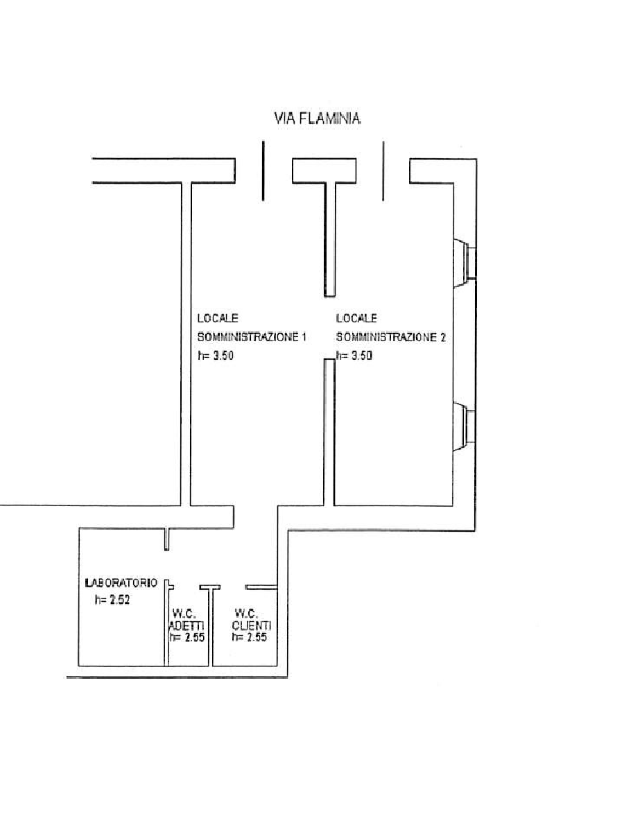
Palombina nuova, disponibile in vendita locale commerciale di 99 mq catastali, situato al piano terra con 2 vetrine su via Flaminia, molto visibile, composto da 3 vani e 2 bagni, di cui uno per disabili. Il locale ha canna fumaria privata e si presta per attività di ristorazione/pizzeria. Classe energetica in definizione.
Accessori
Canna fumariaContatta agente per la proposta
Paola
Ufficio:0712072367
Fax:0712081111
